Description
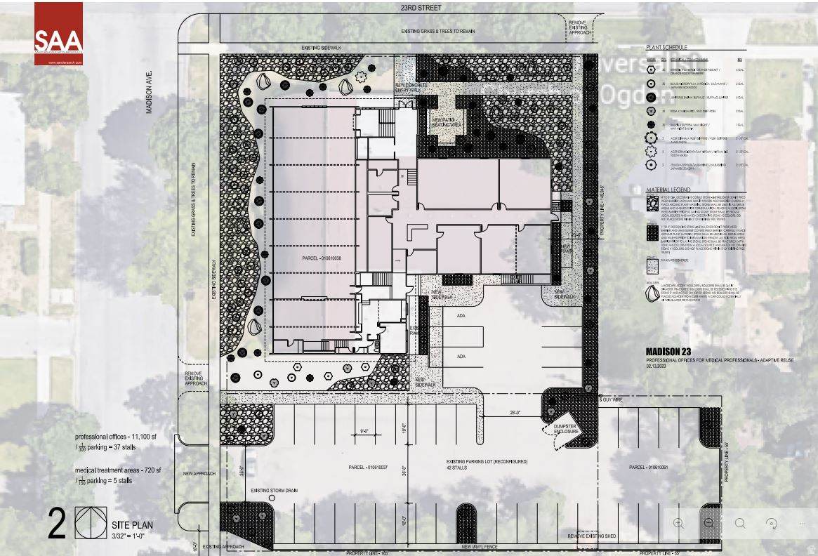
Development opportunity on 0.92 acres zoned R-3EC in Ogden. Former 20,232 SF church (1960 build) is no longer in use; value is primarily in redevelopment potential. Prior CUP approved for medical/professional use with site plans and schematics available. Zoning may also allow townhome development (approx. up to 20 units per owner). Seller prefers sale as-is, but may consider build-to-suit NNN. Buyer to verify all development potential.
-
0BEDS
-
0.92ACRES
-
0BATHS
-
01/2 BATHS
School Information
Description
Development opportunity on 0.92 acres zoned R-3EC in Ogden. Former 20,232 SF church (1960 build) is no longer in use; value is primarily in redevelopment potential. Prior CUP approved for medical/professional use with site plans and schematics available. Zoning may also allow townhome development (approx. up to 20 units per owner). Seller prefers sale as-is, but may consider build-to-suit NNN. Buyer to verify all development potential.
Based on information from the Wasatch Front Regional Multiple Listing Service, Inc. as of 2026-02-07T13:39:36.63. All data, including all measurements and calculations of area, is obtained from various sources and has not been, and will not be, verified by broker or the MLS. All information should be independently reviewed and verified for accuracy. Properties may or may not be listed by the office/agent presenting the information.The information provided is for consumers' personal, non-commercial use and may not be used for any purpose other than to identify prospective properties consumers may be interested in purchasing. Information deemed reliable but not guaranteed accurate. Buyer to verify all information.
